Search Properties

Ficerdy Manor, SA18 3JB

Llandybie

£700,000 Offers Over

Department:
Sales
Reference No.:
29562431
Postcode:
SA18 3JB
Type:
Detached House
Availability:
For Sale
Bedrooms:
5
Bathrooms:
2
Receptions:
2
Tenure:
Freehold
Location:
Llandybie
Price:
£700,000 Offers Over

Property features

  • Beautiful former vicarage with numerous character features.
  • Five bedrooms and large reception areas.
  • Coach house with full residential planning permission.
  • Well positioned with easy access to the M4 corridor.

Summary

* OPEN VIEWING EVENT - FRIDAY 6TH MARCH - 12 - 2PM (APPOINTMENT ONLY) *

Constructed in 1886, this stunning former vicarage is packed with original features and yet has been transformed into a practical family home. Retaining all the charm of the original property, this expansive home offers three reception rooms and five bedrooms, with a large attic space above. In addition to the main house, you’ll find large grounds ringed with mature trees and a sweeping driveway leading up to the property. To the side, you also have a coach house which has full planning permission to be converted into an additional residential unit if required. Ficerdy Manor is positioned in the village of Llandybie, around halfway between the towns of Llandeilo and Ammanford, with easy access to the M4 corridor leading both east and west. This charming property is ready to provide a wonderful home to a new owner.

Entering the home from the electric gated driveway at the front, you arrive in the welcoming original porch which leads through into the main hallway. Both areas are finished with a beautiful quarry tile floor and enjoy high ceilings, which are found throughout the property. Off the main hallway, you have three good-sized reception rooms, each packed with character features such as ornate coving and architraves, herringbone flooring, and stunning Bath stone-framed windows that look out over the gardens. To the rear of the hall, you find the staircase up to the first floor, with a handy cloakroom tucked beneath it. Doors open into the rear of the property and lead around to the kitchen. The kitchen is another wonderful space in the home and offers ample room for a dining area. The space is focused on the large Aga at its heart and offers a great range of kitchen cabinets. There is also a door out to the side of the home, with the windows and doors on this side of the property having been recently upgraded. To the rear of the property, you find four very useful rooms in the form of the boot room, utility, chef’s kitchen, and a linen room. All these rooms are highly flexible to suit the needs of a buyer and provide exceptional storage and utility space.

There are two staircases up to the first floor, the main formal stairs from the entrance hall and what was originally the servants’ staircase up from the kitchen. Either of these staircases take you up to the spacious first-floor landing, which offers the same remarkable high ceilings as the ground floor. Off the landing, you find five double bedrooms, one currently used as a dressing room. There is a full family bathroom with a separate walk-in shower room next to it. The amenities on this level are completed with a lavatory, found to the front of the property. There is a door to another staircase opening off the landing, which leads up to the very large attic space in the property. Comprising three separate rooms, this very large space offers excellent storage and could easily be turned into living space if needed.

Externally, the property enjoys large gardens to all sides with a wonderful mixture of mature planting and trees, and large areas of lawn. To the side of the property, you find an original coach house which has full planning permission granted to be converted for residential use. The building currently offers great storage space, but this could be an exciting opportunity for a purchaser to develop further.

For those looking for a large family home that is brimming with original features yet perfectly suited to modern life, Ficerdy Manor is a wonderful find on the open market. The property enjoys a great position to take advantage of not only the local towns and countryside, but also easy access to Swansea, Cardiff, and beyond. For those looking to purchase a property that combines all these features into a substantial and welcoming home, Ficerdy Manor should make for essential viewing.

Details

Entrance Porch
The original wooden front door leads you into this enclosed entrance porch. The space has a charming quarry tile floor which continues into the hallway beyond, and a window to the side.

Main Hallway
The main hall is a truly grand introduction to the home and impresses with ornate coving and beautiful architraves around the doors. To your right is a door to the main lounge, to your left the sitting room, with the formal dining room beyond it. In front of you is the first of the two staircases in the property, with a cloakroom tucked underneath it. The hall continues round to the right, with a pair of doors taking you into the rear of the property.

Lounge
The spacious lounge is found at the front of the property with beautiful views from the large window looking out over the gardens and the valley beyond. This large space has a feature fireplace and beautiful character features, making it a wonderful space to entertain.

Sitting Room
This charming space offers a more intimate reception than the lounge and has a wood-burning stove as a focal point. The room has windows to the front and side of the home. There is built-in shelving which combines beautifully with the original shutters. The room is finished with an attractive herringbone floor.

Dining Room
The formal dining room is a wonderful space with a large bay window looking out over the gardens. The room has a herringbone floor and a feature fireplace.

Cloakroom
The very well-finished cloakroom is found beneath the stairs and offers a remarkably large space with a window to the rear. The cloakroom includes a lavatory and feature sink and serves the ground floor of the home.

Kitchen
This main kitchen space is another fabulous entertaining area with a large picture window to the front and a door to the side of the home. The kitchen offers plenty of storage along with ample room for a dining area. A large Aga range cooker is set in an original hearth, offering a great focal point to the space. There is a door leading to the second staircase in the property, which originally gave servants access to the floors above, but now allows the owners quick access down to the kitchen for their morning cup of tea. A wonderful, chequered quarry tile floor runs through the kitchen and all the rooms at the rear of the property.

Utility
A door off the kitchen leads into the spacious utility room, which offers space for a range of white goods, along with a window to the rear of the home. The utility room also houses the property’s oil-fired boiler and has a door to an understairs cupboard.

Boot Room
Next to the door to the side of the home is a practical boot room offering excellent storage for coats, shoes, and boots.

Chef’s Kitchen
This very handy room to the rear of the property offers superb built-in storage along with a separate countertop with a built-in hob and oven beneath it. The space makes for a fabulous chef’s kitchen and complements the more social main kitchen next door. The room has a window to the rear gardens in the back wall.

Linen Room
This highly flexible space has a large range of built-in storage along the left-hand wall and offers a highly practical room for any owner.

First Floor Landing
The large main landing can be accessed from either staircase and provides a wonderful, high-ceilinged introduction to this level of the property.

Bedroom One
Turning right at the top of the stairs, you enter this large and impressive bedroom which looks out over the garden at the side of the home. The large Bath stone window perfectly frames the view and brings in plenty of natural light. A feature fireplace on the inner wall provides a lovely focal point.

Bedroom Two
Positioned at the front of the home with windows to two sides, this is another spacious double that has original floorboards underfoot.

Family Bathroom
The main bathroom is found to the rear of the property and looks out over the garden. The room has a freestanding bath, lavatory, bidet, and hand basin.

Shower Room
Next to the family bathroom, you have a large walk-in shower room with a window to the side and a floor-mounted drain. There is tiling to all the walls and the floor.

Bedroom Three
This large bedroom enjoys lovely, elevated views to the front of the home and offers ample space for freestanding bedroom furniture.

Bedroom Four
Found at the rear of the property, this is another good-sized double which has a feature fireplace and exposed floorboards underfoot.

Lavatory
At the front of the home, between bedrooms two and three, is a handy cloakroom which benefits from a hand basin, bidet, and lavatory. The room has two windows looking out to the front of the property.

Bedroom Five
Found to the front of the property, this bedroom is currently used as a dressing room with a great range of fitted wardrobes. This space would also make a perfect nursery or studio if not needed as a bedroom.

Attic Rooms
Accessed from a staircase off the first-floor landing, the attic space in Ficerdy Manor is very impressive. Divided into three rooms, the space offers huge amounts of storage and usable area. While headroom is restricted at some points, the space on offer is fantastic and could easily add to the habitable space in the property if needed. This level also provides easy access to the roof for any maintenance work required.

External
Ficerdy Manor is set back from the road with a mature line of trees hiding it from view. An electric gated entrance leads to a sweeping drive that leads up to the property and gives views over the gardens. There is a very large area of lawn to the front of the home, ideal for children to enjoy. To the southern side of the property, you find another area of lawn with several sheltered seating areas. To the rear of the home, you find another sheltered lawn that forms a delightful suntrap up against the wall of the coach house. The coach house has a large area of walled parking in front of it, accessed from the driveway, which also provides an access point into the side of the main home. The gardens offer a wonderful space to enjoy, with huge scope for a keen gardener to develop should they wish.

The grounds also include the Coach House, which currently provides excellent storage and an outside toilet, but with planning in place, this could be converted into an additional residential unit to complement the main property. The Coach House also has an electric vehicle charging point to the side and a large log store to the rear.

Directions
If approaching from the east take the A483 at the Pont Abraham roundabout and proceed through the towns of Tycroes and Ammanford. Proceed north on the A483 following signs for Llandeilo. When you reach the village of Llandybie proceed through the village and as you leave the village on the A483 Ficerdy Manor will be on your left-hand side.

If approaching from the west proceed either to Cross Hands on the A48 before turning off and passing through Penygroes and Blaenau before reaching Llandybie or heading south from Llandeilo on the A483.

What3Words location for entrance to property: ///screamed.class.blogs

Disclaimer
1.Money laundering regulations: Intending purchasers will be asked to produce identification documentation at a later stage, and we would ask for your co-operation in order that there will be no delay in agreeing the sale.

2. General: While we endeavour to make our sales particulars fair, accurate and reliable, they are only a general guide to the property and, accordingly, if there is any point which is of particular importance to you, please contact the office and we will be pleased to check the position for you, especially if you are contemplating travelling some distance to view the property.

3. Any measurements and distances indicated are supplied for guidance only and as such must be considered incorrect.

4. Services: Please note we have not tested the services or any of the equipment or appliances in this property, accordingly we strongly advise prospective buyers to commission their own survey or service reports before finalising their offer to purchase.

5. These particulars are issued in good faith but do not constitute representations of fact or form part of any offer or contract. The matters referred to in these particulars should be independently verified by prospective buyers or tenants. Neither the Country Living Group nor any of its employees or agents has any authority to make or give any representation or warranty whatever in relation to this property.

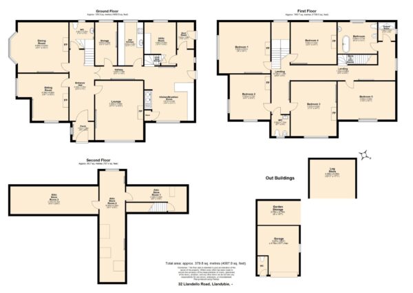
Floor Plans

EPC

Request Further Details

Or arrange a viewing