Search Properties

Colby Lodge, SA67 8PP

Narberth

£995,000 Guide Price

Department:
Sales
Reference No.:
30075717
Postcode:
SA67 8PP
Type:
Detached House
Availability:
For Sale
Bedrooms:
5
Bathrooms:
3
Receptions:
3
Tenure:
Leasehold
Location:
Narberth
Price:
£995,000 Guide Price

Property features

  • Iconic Grade II listed Georgian mansion in a remarkable woodland setting
  • Five bedroom main house with two bedroom annex
  • Generous areas of mature beautiful gardens
  • Walking distance to the beach through an ancient wooded valley

Summary

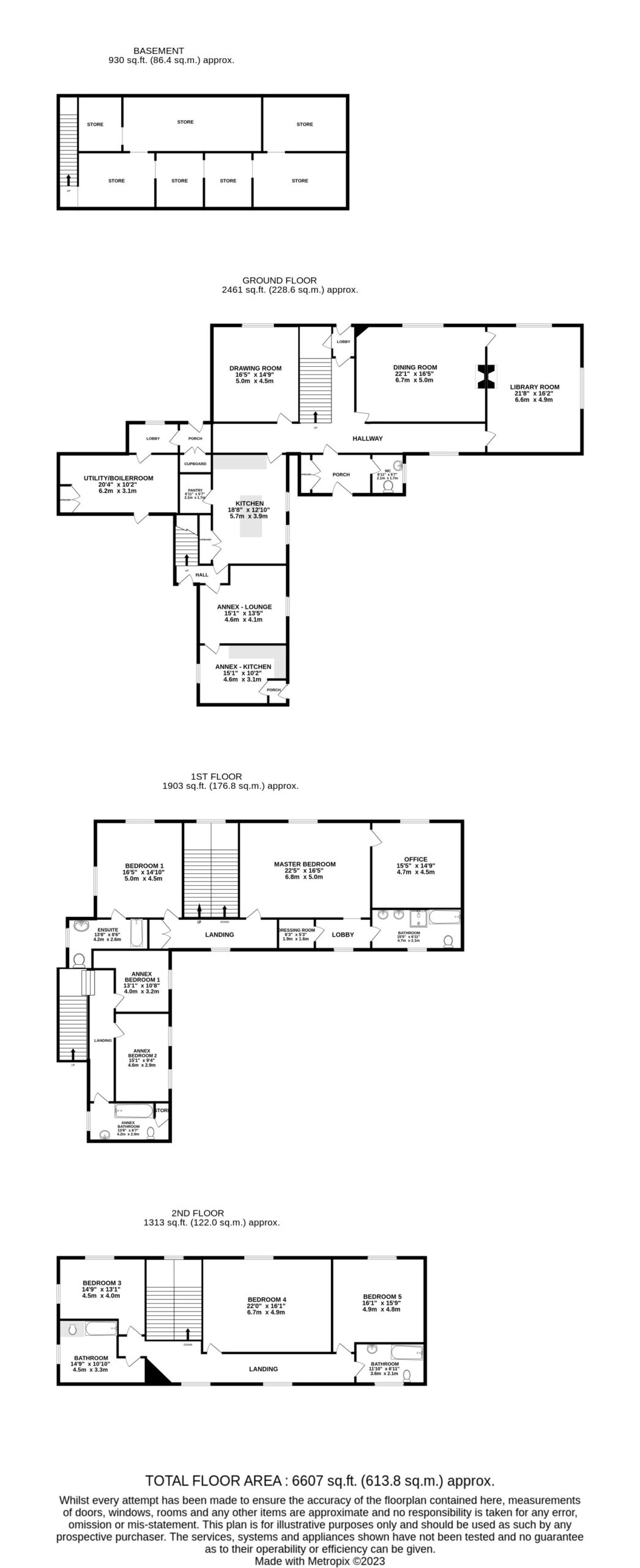
Occupying a commanding position in one of Pembrokeshire’s most iconic woodland settings, this stunning residence is a truly remarkable proposition. The manor house offers five lavish bedrooms and four reception rooms spread over three floors. Colby Lodge also benefits from a self-contained two bedroom annex. Surrounding the home are beautiful gardens extending to several acres that echo all the grandeur and character of this amazing estate. Colby Lodge sits at the heart of the 900 acre Colby Woodland Garden estate, owned and managed by the National Trust. The status of the estate ensures the idyllic setting of the Lodge is preserved for generations to come.

Entering the property from the spacious gravel driveway you arrive in an enclosed porch before proceeding into the grand hallway at the centre of the property. This hallway links all the principal rooms on this level and houses the beautiful sweeping staircase that rises through the three levels of the home. There are three main reception rooms on this level and the recently renovated kitchen which also provides a wonderful informal dining space. The drawing room is a wonderful space to relax in and is complemented by the breathtaking formal library at the other end of the floor. Between these two rooms you find the grand dining room which was built to a design by the world famous architect John Nash. Completing the accommodation on this level is a cloakroom and good-sized utility/boot room.

Climbing the sweeping staircase to the first floor you arrive at the magnificent master suite to your left hand side. Occupying the entire western side of this floor, the incredible master suite provides a huge bedroom, separate office or studio, dressing room, and ensuite bathroom. This remarkable space looks out over the breathtaking gardens and grounds that surround the property and would be a tranquil paradise to retire to at the end of the day. At the other end of the first floor you find another generous double bedroom with the staircase continuing up from the central landing to the floor above.

On the second floor of the home you find another three double bedrooms along with two family bathrooms at either end of the property. The bedrooms on this level enjoy some of the finest views in the property with the greater elevation offering an unparalleled view down the wooded valley.

The self contained annex has its own access from the driveway and a lockable internal door connecting to the kitchen of the main house. It offers excellent additional accommodation for extended family or house guests. Alternatively, this could provide an ideal letting unit to take full advantage of Colby Lodge’s fabulous location.

The option to purchase such an exceptional property in a truly wonderful and unspoilt setting is a rare opportunity for a buyer. Colby Lodge is a winning combination of a property and grounds that reflect the character and history of their construction with a warm and welcoming feel that greets you as soon as you approach this truly magnificent estate.

(For lease details please contact agent)

Details

Entrance
You enter Colby Lodge from the gravel parking area and arrive in a spacious porch. A range of fitted storage covers the left hand wall with light being brought in from above through a central roof light. A door in the rear wall leads into the main hallway with a door to your right opening into the handy cloakroom.

Cloakroom
Serving the ground floor of the property, this cloakroom offers a lavatory and hand basin, and has a window to the side.

Main hallway
The main hallway connects all the principal rooms on this level and also houses the grand sweeping staircase that connects the three floors of the home. The hall is the perfect introduction to the property with its generous proportions preparing a visitor for the lavish entertaining spaces that are found on this floor. To your right the hallway leads to the dining room and library. An archway on your left leads to the kitchen, boot room, and the drawing room, whilst straight ahead leads to a rear door to the gardens and a doorway to the 7 bay cellar on the left.

Drawing room
This impressive reception room offers a flexible space to the ground floor which complements the more formal entertaining spaces of the library and dining room. The room has a large window that looks out to the rear of the home and could fulfil a variety of uses for owners.

Dining room
One of the centrepieces of this remarkable property is undoubtedly the stunning dining room in the centre of the ground floor. The signature Nash design features of the columns, curved doors, and the symmetry that is found in the space is truly impressive and creates a space that would be perfect for the grandest of occasions. A beautiful fireplace is set in the far wall with a large picture window looking out over the gardens. There is a connecting door in the far wall that leads directly into the library.

Library
Accessed from either the main hallway or the dining room, this room is at once both formal and welcoming with some of the finest views of the gardens from this level. The library has full length windows to the south and west along with a beautiful ornate fireplace. The rich blue of the walls, fitted bookshelves, and intricate ceiling mouldings ensure that your guests will always have something to marvel at in this truly fantastic room.

Kitchen
The kitchen was remodelled by the current owners to create a space that works in harmony with the history and character of the property while creating an informal family space in this grand property. The room centres around a granite topped island which offers space for dining and food preparation. There is also a large range of oak doored kitchen base units, including integrated dishwasher, as well as a spacious crockery cupboard along with a good-sized walk in pantry Two windows look out to the front of the home and there is also a door leading into the annex of the property.

Utility / boot room
An indispensable space in the home, this room offers an ideal utility space and houses the oil fired boilers There is also a butler sink and under counter space for a washing machine and dryer along with space for a freestanding fridge freezer. There is a large range of built-in cupboards along with a hanging drying rack above. There is a stable door to the courtyard to the side of the property, with a door to the rear next to the entrance to the utility room.

Firs floor planding
The grand staircase brings you from the ground floor to the large first floor landing. Windows to the front and rear of the property flood the space with natural light, with the generous proportions of the landing echoing the spacious rooms that it leads to.

Bedroom one
At the top of the staircase you turn left into the opulent master suite that takes up the entire western side of this level of the home. The master bedroom sits at the centre of the building with a picture window enjoying far reaching views down the valley. The left hand wall of the room is lined with built-in wardrobes with ample space for any freestanding furniture an owner requires. At the far end of the room is feature fireplace, with a door to the office beside it. To the right of the fireplace another door opens into the dressing room and then the ensuite bathroom.

Office / study
A fantastic addition to the master suite is this flexible study space. Reserved for the owners and providing a private space which could be an ideal office, studio, or living space away from the rest of the home, this room also enjoys its own fireplace and fantastic views over the gardens and the woods beyond.

Ensuite bathroom
A dressing room and walk-in wardrobe are found off the master bedroom and in turn they open into the generously proportioned ensuite bathroom. Offering twin hand basins, a large shower cubicle, original soaking bathtub, and lavatory. A window looks out to the front of the property.

Bedroom two
At the opposite end of the floor from the master bedroom you find another impressive double bedroom. This room has windows to the south and eastern aspect and offers ample space for freestanding bedroom furniture. A door on the left hand wall leads into the ensuite bathroom.

Ensuite bathroom
This bathroom contains a bath with overhead shower, and a lavatory and hand basin down a short flight of stairs. A window to the side brings in natural light.

Second floor landing
The winding staircase continues up from the first floor landing to the top level of the home. The long, wide landing is well lit by windows and connects to all the rooms on this level. It also offers a large built-in linen cupboard at the top of the stairs.

Bedroom three
To the right of the top of the stairs you find the third double bedroom in the main house which enjoys windows to two sides overlooking the meadow and a window seat into the stunning walled garden. This bedroom is positioned next to the first family bathroom on this floor.

Family bathroom
This generous-sized bathroom provides a bath with shower over, hand basin, feature fireplace, and lavatory. There is a window to the east side of the house.

Bedroom four
Situated in the centre of the property above the master bedroom, this room is a generously proportioned bedroom which enjoys superb, elevated, views of the gardens and grounds that surround Colby Lodge. Like the master bedroom, this space offers a large range of built-in cupboards and a feature fireplace, with a connecting door to bedroom 5.

Bedroom five
This bedroom on the west side of the house provides another generous room for the property with one of the finest views looking directly down the wooded valley. The room also offers a built-in cupboard and hand basin.

Family Bathroom
Positioned next to bedroom 5, this bathroom offers a bath with shower over, lavatory, and hand basin with a window to the front

Annexe
Integral to the generous accommodation on offer at Colby Lodge, the property also benefits from a two bedroom, self-contained, annex which is ideal for extended family or multi-generational living. The original service wing offer a kitchen/diner living room, two bedrooms and a bathroom, and provides excellent overflow accommodation.

External
The extensive grounds of Colby Lodge are made up of four gardens. Exceptional care and attention has been given to the planning and maintenance of these tranquil and inspiring grounds. There are numerous rare and specialist plants and trees dotted throughout the generous gardens with ancient oak, metasequoia, rhododendron, azalea, camellia, and numerous rare linden/lime trees. The gardens provide a beautiful and magical display of awesome colour throughout the seasons.

Colby Lodge includes several outbuildings, including ty bach – a stone built store in the garden, a larger than usual double garage, an elegant greenhouse and a two storey outbuilding behind the lodge.

Surrounding Colby Lodge is almost 900 acres of beautiful National Trust woodland gardens. From Colby Lodge you can explore the gardens and head down the wooded valley to the coast at Amroth, only a short walk away.

Council tax band - I

Directions
Approaching from the east take the A477 from St Clears signposted for Tenby and Pembroke. After passing through the village of Llanteg take the next major signposted left turn for Amroth, Ludchurch, and Wiseman’s Bridge. Continue on this road until you reach a crossroads, take the left hand turn signposted for Colby Gardens. Proceed on this road as it heads downhill and you will come to Colby Lodge on your right hand side with ample parking on the gravel drive to the front of the property.

What3Words location for entrance to property: ///should.running.ruler

Floor Plans

Request Further Details

Or arrange a viewing