Search Properties

Trearched Farmhouse, SA62 5JP

Haverfordwest

£850,000 Guide Price

Department:
Sales
Reference No.:
29596787
Postcode:
SA62 5JP
Type:
Detached House
Availability:
For Sale
Bedrooms:
4
Bathrooms:
3
Receptions:
2
Tenure:
Freehold
Location:
Haverfordwest
Price:
£850,000 Guide Price

Property features

  • Four-bedroom detached farmhouse with a large garden.
  • Lovely sea views to the front, close to the coast and Porthgain.
  • Superb renovation by master builders Carreg Construction.
  • Short drive to St Davids and Fishguard.

Summary

Treachred Farmhouse has recently undergone a full renovation by one of Pembrokeshire’s most respected and award-winning building companies. This beautiful Grade II listed, four-bedroom, farmhouse is presented for sale in superb condition and is ready to move into. Enjoying a wonderful rural position, the home benefits from views down to the sea and the nearby northern Pembrokeshire coastline. Britain’s smallest city, St Davids, is a short drive to the west, with several local beaches also within easy reach.

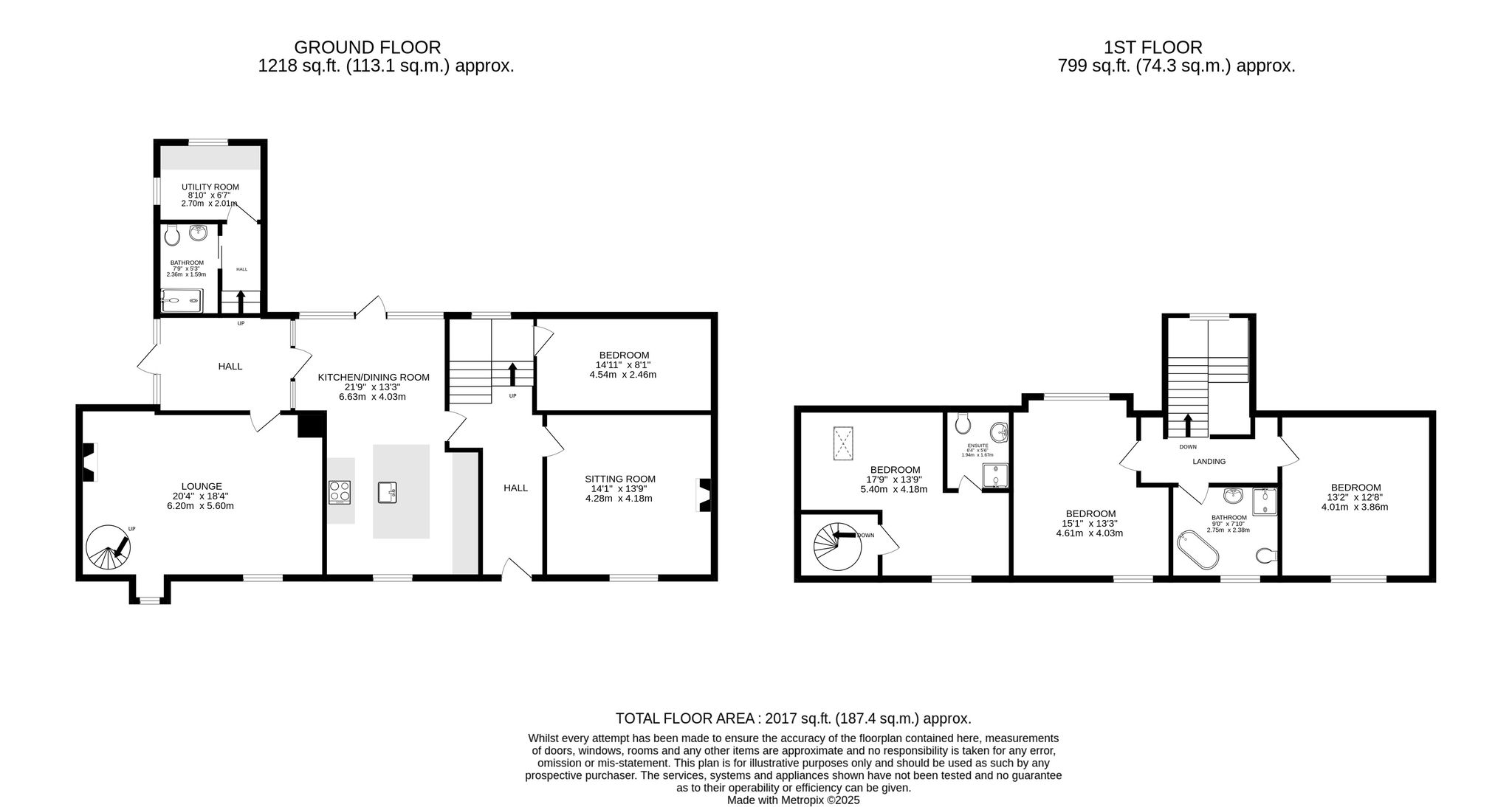
Entering the property from the front, you arrive in the welcoming central hallway, featuring a beautifully finished slate flagstone floor and meticulously presented exposed stone wall. The flagstones underfoot are warmed by underfloor heating, which runs throughout the entire ground floor of the property. To the right of the hallway, you find a lovely sitting room that enjoys sea and countryside views to the front through shuttered windows. A door to the left of the hall takes you into the kitchen/dining room at the centre of the home. This beautiful space provides a perfect entertaining area with a top-of-the-line fitted kitchen sure to delight any cook. The room offers a large dining area to the rear, with access to the garden via metal Crittall-style windows and doors. A matching partition leads through to the rear lobby, which in turn has doors to a ground-floor shower room and a handy utility room. Another door from the rear lobby takes you into the stunning main living room, which has windows to the front and rear along with a wood-burning stove in a beautiful inglenook fireplace. The living room also contains the property’s second staircase, which gives direct access up to the master bedroom.

The first floor of the home can be accessed either from the main staircase off the entrance hall, which leads to bedrooms two, three and four along with the family bathroom, or via the spiral staircase that gives direct access to bedroom one. This master bedroom is a lovely space with a window to the front of the home and rooflights to the front and rear. Three of the four bedrooms enjoy views to the front, with their elevated position affording them the best outlook over the nearby coastline. Bedroom one also benefits from an ensuite shower room to the rear. Off the main landing, you find two double bedrooms, with the superbly appointed family bathroom between them. The fourth and final bedroom, a good-sized single, is found off the split landing at the rear of the home.

Externally, the property offers a lawn area to the front, with a gravel driveway providing ample parking. The gravel continues to the side and rear of the home, providing additional parking and a large, sheltered seating area accessed from the kitchen. There is an external plant room off the driveway that houses the property’s heating system. To the side and rear, you find large lawned gardens with mature trees surrounding them. There is also a small stone outbuilding, ‘Ty Bach’, which provides a great point of interest. The gardens enjoy lovely views of the surrounding countryside.

A short drive from Croes Goch, St Davids, the UK’s smallest city, is celebrated for its charming collection of independent shops, inviting cafés, and characterful restaurants and pubs. Beyond the city lies some of West Wales’s most stunning coastline and countryside, with Whitesands Beach often praised as one of the finest in Britain. Whether you’re interested in water sports, sailing, or simply soaking up the scenery, this coastal community has something for everyone. Famous for its stunning cathedral, the resting place of Wales’s patron saint, St Davids is now much more than a historic landmark; it’s a thriving community that warmly welcomes both residents and visitors. To have this bustling city within easy reach is a great bonus for Treachred Farmhouse.

Combining this superb setting with a truly warm and welcoming property, this inviting family home is a rare find on the open market.

Details

Main Hallway
Entering the property from the front, you arrive in this stunning hallway, which offers beautiful slate flagstone flooring (warmed by underfloor heating) and exposed stonework. To your left is a door to the kitchen, with the staircase to the first floor in front of you. There is a cleverly hidden storage cupboard under the stairs for added storage. A door to the right accesses the sitting room.

Sitting Room
Positioned at the front of the home, this lovely sitting room enjoys views out to the coast. This space could alternatively fulfil a range of needs, as it would be perfect as a home office or children’s playroom.

Kitchen / Family Room
Undeniably a fantastic focal hub for the property, this beautiful kitchen/family room sits at the centre of the home. This fabulous space has a window to the front and a fully glazed rear wall opening out to the seating area in the garden. The kitchen is beautifully finished with light, bespoke cabinetry and a large central island. There is a full range of high-end fitted appliances, along with space for an American-style fridge freezer. The room is finished with a stunning herringbone oak floor and has an internal window into the bedroom above, which is a lovely feature. A Crittall-style window divider in the far wall gives access to the rear lobby.

Rear Lobby
This practical space can be accessed from the driveway at the side of the home and boasts stunning metal Crittall-style windows and a door, mirrored in a partition between this space and the kitchen/family room. A door to the left leads to the living room, with the hall continuing to the right to access the shower room and utility.

Ground Floor Shower Room
Positioned next to the utility room, this useful shower room offers a walk-in shower, lavatory and hand basin, and has a window to the side.

Utility
The utility room offers a great practical space that complements the amenities of the kitchen. There is a full range of floor-mounted cabinetry along with worktops, a butler sink, and space and plumbing for a washing machine and separate dryer. There are windows to three sides and two rooflights above, which flood the space with natural light.

Living Room
Accessed from the rear lobby, the living room is another great entertaining space with windows to the front and rear of the home. The focal point of the space is the large inglenook fireplace housing a wood-burning stove. The room has beautiful, exposed beams and wood cladding to the left-hand wall. A spiral staircase in the far corner leads up to bedroom one.

Bedroom One
This delightful bedroom has its own spiral staircase leading up from the living room below. A great-sized double, this bedroom would make a perfect principal suite or a fantastic guest room, situated away from the other bedrooms. The room has a rooflight to the front and rear, and a sash window with sea views to the front. There is plenty of room for freestanding bedroom furniture and a door to the ensuite shower room.

Ensuite Shower Room
Off the principal bedroom, this space has a corner shower, lavatory and hand basin, along with a rooflight to the rear.

First Floor Landing
The staircase from the entrance hall leads up to the first-floor landing, which enjoys exposed beams and stonework and has a rooflight in the ceiling above. The landing has doors to bedrooms two and three along with the family bathroom. The door to bedroom four is found on the split landing as you climb the stairs.

Bedroom Two
Positioned at the front of the property, this lovely double bedroom enjoys sea views from the window to the front and has a rooflight above and an internal window looking down into the kitchen/dining room.

Bedroom Three
This charming bedroom is found at the opposite end of the landing from bedroom two and shares use of the family bathroom next door. The room offers great space for bedroom furniture and has a shuttered window to the front with sea views.

Bedroom Four
Positioned off the split landing to the rear of the property, this good-sized single bedroom is currently used as a nursery. A lovely space, it has a window to the rear and a skylight above.

Family Bathroom
The family bathroom is a superbly finished space offering a walk-in shower, roll-top bath, lavatory and hand basin. The room has a window to the front to take in the impressive outlook.

External
The farmhouse is accessed via a shared, gated driveway which leads around to the main home. The property owns the area of grass to the front of the home along with the driveway and parking to the side. There is ample space for several vehicles, along with access around both sides of the home. There is a wooden-clad plant room to the side of the home. To the immediate rear of the property is a gravel seating area accessed directly from the doors leading off the kitchen; this provides a lovely, sheltered seating area for entertaining.

To the rear and side of the home, you find a lawned garden ringed with mature trees and stone walls. There is a stone outbuilding in the garden, ‘Ty Bach’, which provides another lovely feature. Much of the garden enjoys lovely views of the sea and surrounding countryside.

Directions
From the east, take the A487 from Fishguard towards St Davids. Pass Mathry and Square and Compass and proceed until you see the sign for Croes-Goch on your left-hand side. Immediately past the first stone cottage on the right as you enter the village turn into the driveway and proceed up to a wooden five bar gate.
Access information will have been given to you by us from this point.

Procced up the driveway and follow it around to the left and Treachred Farmhouse will be found on your left-hand side with parking just beyond it.

What3Words location for entrance to drive: ///layered.bead.brand
What3Words location for entrance to property: ///trailers.reputable.dusted

Disclaimer
1.Money laundering regulations: Intending purchasers will be asked to produce identification documentation at a later stage, and we would ask for your co-operation in order that there will be no delay in agreeing the sale.

2. General: While we endeavour to make our sales particulars fair, accurate and reliable, they are only a general guide to the property and, accordingly, if there is any point which is of particular importance to you, please contact the office and we will be pleased to check the position for you, especially if you are contemplating travelling some distance to view the property.

3. Any measurements and distances indicated are supplied for guidance only and as such must be considered incorrect.

4. Services: Please note we have not tested the services or any of the equipment or appliances in this property, accordingly we strongly advise prospective buyers to commission their own survey or service reports before finalising their offer to purchase.

5. These particulars are issued in good faith but do not constitute representations of fact or form part of any offer or contract. The matters referred to in these particulars should be independently verified by prospective buyers or tenants. Neither the Country Living Group nor any of its employees or agents has any authority to make or give any representation or warranty whatever in relation to this property.

Floor Plans

Request Further Details

Or arrange a viewing